Introducing the All-New Centre-Lounge Regal Hemsworth
This exciting 40×13 Centre-Lounge model combines the cosy atmosphere of a classic holiday home layout with an exquisite, on-trend colour palette of tranquil duck-egg greens and warm naturals.
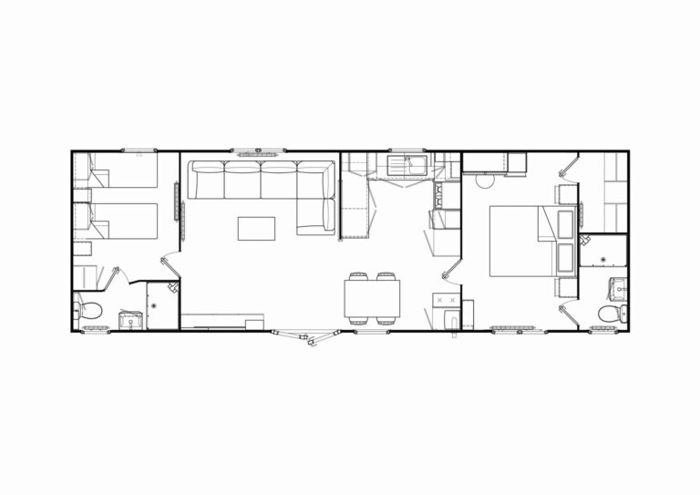
A Truly Unique Layout
The French doors allow for seamless integration with your outdoor space, while the unique Centre-Lounge layout guarantees privacy and space for every owner and guest. Internally, the vaulted ceilings enhance the already spacious and light-filled interior.
The Heart of the Home:
The Hemsworth stands out due to its clever, visual separation of space. A contemporary room divider partially separates the lounge from the dining and kitchen areas, ensuring a feeling of defined zones while maintaining an open flow.
-
The Lounge: Features a freestanding L-shaped sofa (with a pull-out occasional bed), a feature TV and storage unit, and a coffee table. Comfort is guaranteed with scatter cushions and satin chrome sockets with USB points.
- The Kitchen & Dining: Designed to a domestic size, featuring soft close cupboards and drawers, a premium electric oven/4-burner hob, and a built-in cooker hood. The integrated fridge-freezer and microwave/oven/grill make cooking effortless. The space is completed by a freestanding dining table & four chairs
Luxurious Boutique-Style Bedrooms
The sleeping quarters are designed to evoke the feeling of a high-end retreat, perfect for owners or the luxury short-stay market.
-
Master King-Size Bedroom: Pure indulgence, with the en-suite shower room and walk-in wardrobe are cleverly tucked behind the bedhead wall, it gives a true ‘hotel stay’ feel. It features a king-size bed, dressing table with timber panelling, and freestanding bedside cabinets.
Twin Bedroom: Offers comfortable and spacious accommodation with two 2’6” beds, a TV point, USB socket, and private ensuite!
Secure This Modern, Highly Coveted Model!
With its high-quality features (including gas combi central heating), and uniquely spacious Centre-Lounge design, the Regal Hemsworth is modern, different, and highly desirable.
This brand-new model has just arrived and is ready for its new owners. Book your viewing to experience the Hemsworth today!























